Haso Gustav Pauligin katu 2a ja Heka Maustetehtaankatu 2
Sijainti
Vuosaari, Helsinki
Laajuus
600 h-m2
Tilaaja
ATT/ HOK
Valmistumisajankohta
2026
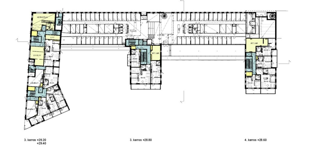
Hason 16-kerroksisessa tornissa on 79 asumisoikeusauntoa ja Hekan kolmessa rakennuksessa 118 vuokra-asuntoa. Korttelissa sijaitsee myös Hekan huoltovarikko ja toimistotilat sekä päivittäistavarakauppa.
Suunnitteluryhmä
Jari Viherkoski
Eeva Sääskilahti
Ksenia Lukka
Janita Eskelinen

Kuva:Juha Salminen / HS










































